Skip to content
Početna
O nama
Aktuelni projekti
Ugao Žabaljske i Milana Stanivukovića
Sarajlijina
Projekti u pripremi
Realizovani projekti
Milana Stanivukovića
Žarka Zrenjanina 14
Rade Končara 14A
Dostupni stanovi
Kontakt
Početna
O nama
Aktuelni projekti
Ugao Žabaljske i Milana Stanivukovića
Sarajlijina
Projekti u pripremi
Realizovani projekti
Milana Stanivukovića
Žarka Zrenjanina 14
Rade Končara 14A
Dostupni stanovi
Kontakt
Nazad
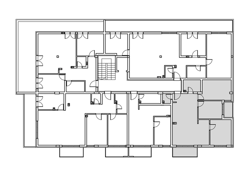
S36
kvadratura: 82.49m
2
sprat: 5
broj soba: 4
Iskaži interesovanje
PDF
Osnova stana
Pozicija na etaži
Kvadratura po prostorijama
Hodnik
4.44m²
WC
1.74m²
Kupatilo
4.48m²
Dnevna soba + Trpezarija + Kuhinja
29.81m²
Spavaća soba 1
13.16m²
Spavaća soba 2
9.14m²
Spavaća soba 3
11.64m²
Terasa
5.15m²
Terasa
2.93m²