Sarajlijina

O projektu

Stambeni objekat u Sarajlijinoj ulici u Zrenjaninu predstavlja savremeno koncipiran projekat koji objedinjuje funkcionalnost, kvalitet gradnje i moderan arhitektonski izraz. Sa ukupno 31 stanom, projekat je osmišljen tako da pruži optimalan balans između privatnosti, komfora i urbanog načina života. Pažljivo planirana struktura stanova omogućava efikasno iskorišćen prostor, uz obilje prirodne svetlosti i jasno definisane funkcionalne celine. Svaki detalj projekta razvijan je sa ciljem da odgovori na potrebe savremenih kupaca.

U realizaciji objekta korišćeni su provereni materijali i savremena tehnička rešenja, sa fokusom na dugotrajnost, energetsku efikasnost i kvalitet stanovanja. Moderan dizajn i racionalna organizacija prostora doprinose visokom nivou svakodnevnog komfora. Lokacija objekta dodatno naglašava njegovu vrednost – mirno okruženje, dobra povezanost sa ostatkom grada i blizina svih ključnih sadržaja čine ovaj projekat idealnim izborom za kvalitetan život u Zrenjaninu.

BMT Lux Invest
BMT Lux Invest
BMT Lux Invest

31 stan

BMT Lux Invest

2027 godina

BMT Lux Invest

2.693 kvadrata

BMT Lux Invest

23 parking mesta

Lokacija

Objekat se nalazi u Sarajlijinoj ulici u Zrenjaninu, na mirnoj i dobro povezanoj lokaciji u neposrednoj blizini svih važnih sadržaja za svakodnevni život.

U blizini:

BMT Lux Invest

Park

BMT Lux Invest

Market

BMT Lux Invest

Škola

BMT Lux Invest

Igralište

BMT Lux Invest

Pijaca

BMT Lux Invest

Teretana

Stanovi

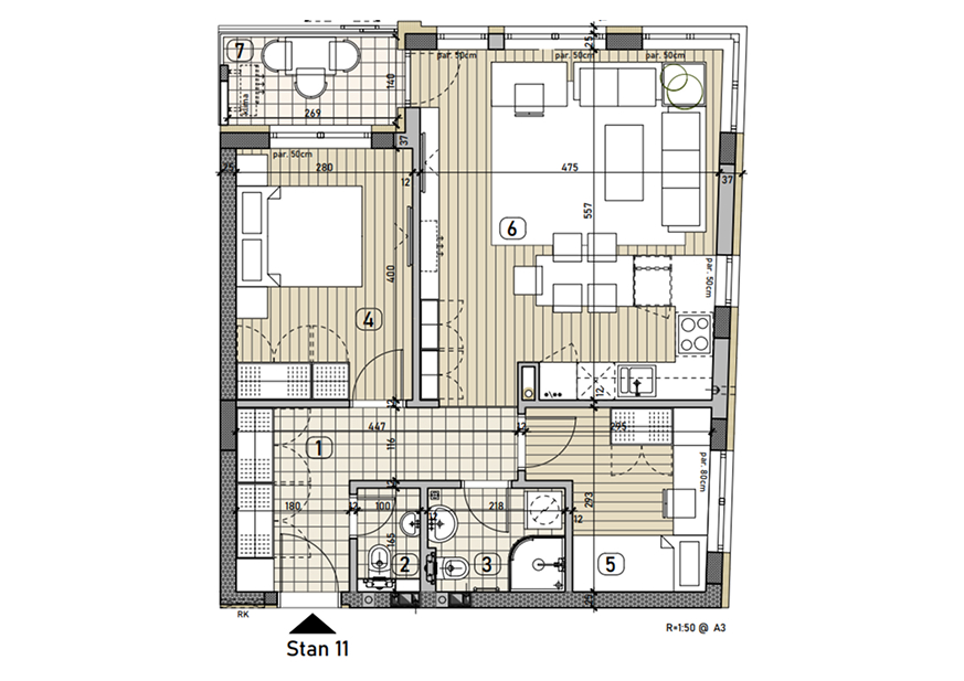
S11

Sarajlijina
BMT Lux Invest
61.60m2
broj soba: 3
sprat: 1
Slobodan

S26

Sarajlijina
BMT Lux Invest
53.93m2
broj soba: 2
sprat: 3
Slobodan

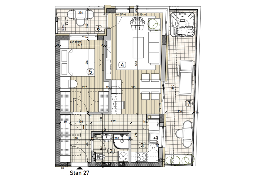
S27

Sarajlijina
BMT Lux Invest
60.96m2
broj soba: 2
sprat: 3
Slobodan

S02

Sarajlijina
BMT Lux Invest
53.26m2
broj soba: 3
sprat: PR
Prodat

S03

Sarajlijina
BMT Lux Invest
61.60m2
broj soba: 3
sprat: PR
Prodat

S09

Sarajlijina
BMT Lux Invest
40.16m2
broj soba: 2
sprat: 1
Prodat

S10

Sarajlijina
BMT Lux Invest
53.26m2
broj soba: 3
sprat: 1
Prodat

S12

Sarajlijina
BMT Lux Invest
48.28m2
broj soba: 2
sprat: 1
Prodat

S13

Sarajlijina
BMT Lux Invest
41.87m2
broj soba: 2
sprat: 1
Prodat

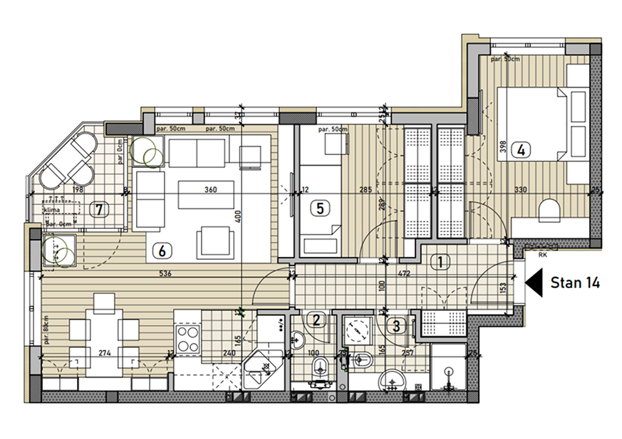
S14

Sarajlijina
BMT Lux Invest
61.76m2
broj soba: 3
sprat: 1
Prodat

S15

Sarajlijina
BMT Lux Invest
58.56m2
broj soba: 3
sprat: 1
Prodat

S16

Sarajlijina
BMT Lux Invest
40.20m2
broj soba: 2
sprat: 1
Prodat

S17

Sarajlijina
BMT Lux Invest
40.16m2
broj soba: 2
sprat: 2
Prodat

S18

Sarajlijina
BMT Lux Invest
53.26m2
broj soba: 3
sprat: 2
Prodat

S19

Sarajlijina
BMT Lux Invest
61.60m2
broj soba: 3
sprat: 2
Prodat

S20

Sarajlijina
BMT Lux Invest
48.28m2
broj soba: 2
sprat: 2
Prodat

S21

Sarajlijina
BMT Lux Invest
41.87m2
broj soba: 2
sprat: 2
Prodat

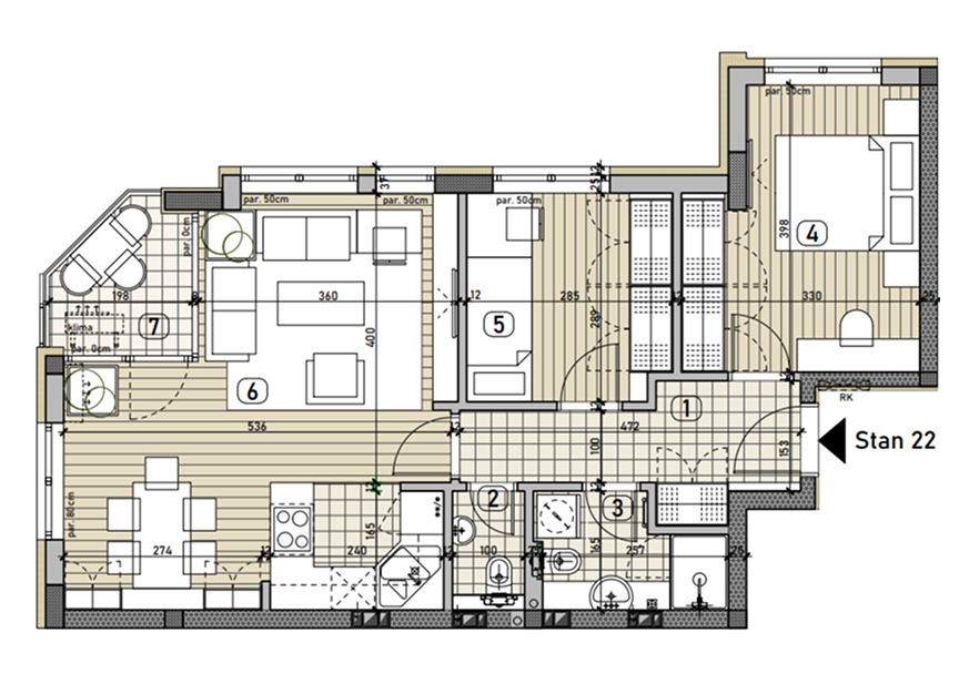
S22

Sarajlijina
BMT Lux Invest
61.76m2
broj soba: 3
sprat: 2
Prodat

S23

Sarajlijina
BMT Lux Invest
58.56m2
broj soba: 3
sprat: 2
Prodat

S24

Sarajlijina
BMT Lux Invest
40.20m2
broj soba: 2
sprat: 2
Prodat

S25

Sarajlijina
BMT Lux Invest
40.07m2
broj soba: 2
sprat: 3
Prodat

S28

Sarajlijina
BMT Lux Invest
48.28m2
broj soba: 2
sprat: 3
Prodat

S29

Sarajlijina
BMT Lux Invest
41.87m2
broj soba: 2
sprat: 3
Prodat

S30

Sarajlijina
BMT Lux Invest
123.79m2
broj soba: 4
sprat: 3
Prodat

S31

Sarajlijina
BMT Lux Invest
40.03m2
broj soba: 2
sprat: 3
Prodat

Kontakt

Name