Skip to content
Početna
O nama
Aktuelni projekti
Ugao Žabaljske i Milana Stanivukovića
Sarajlijina
Projekti u pripremi
Realizovani projekti
Milana Stanivukovića
Žarka Zrenjanina 14
Rade Končara 14A
Dostupni stanovi
Kontakt
Početna
O nama
Aktuelni projekti
Ugao Žabaljske i Milana Stanivukovića
Sarajlijina
Projekti u pripremi
Realizovani projekti
Milana Stanivukovića
Žarka Zrenjanina 14
Rade Končara 14A
Dostupni stanovi
Kontakt
Nazad
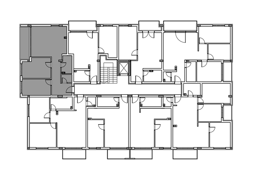
S02
kvadratura: 70.63m
2
sprat: 1
broj soba: 3
Iskaži interesovanje
PDF
Osnova stana
Pozicija na etaži
Kvadratura po prostorijama
Hodnik
10.18m²
WC
1.93m²
Kupatilo
4.15m²
Dnevna soba + Trpezarija + Kuhinja
24.56m²
Spavaća soba 1
12.49m²
Spavaća soba 2
10.56m²
Terasa
6.76m²